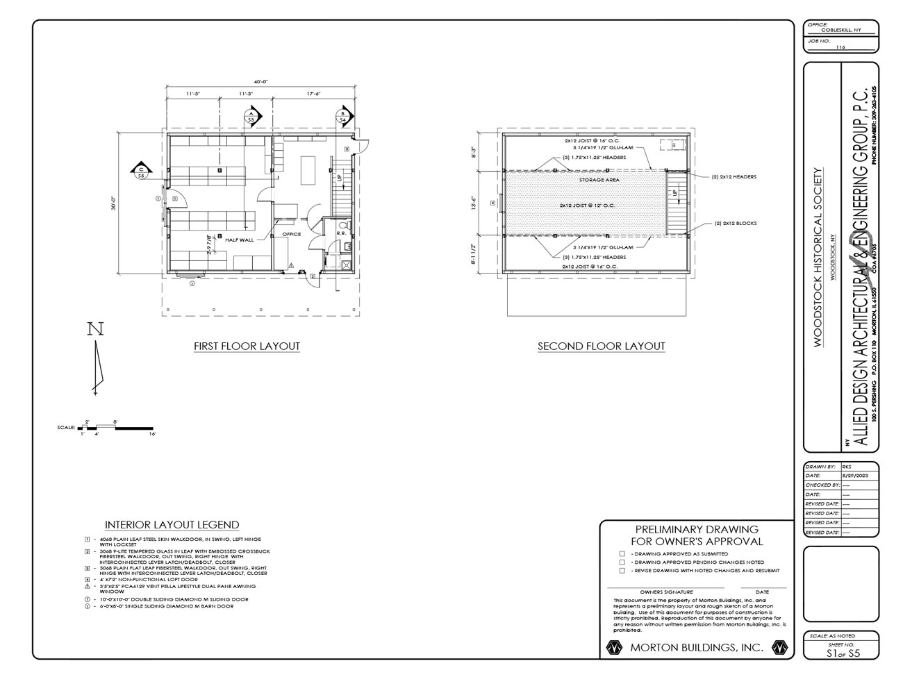
Plans to Install a Modern Archive and Research Center
Thanks to a generous donation from the estate of longtime Board member and lifelong Woodstock resident, Jean White, and with help from the Woodstock community, our goal of a new archives and research center is within sight.
Installing the new building is urgent because:
-
Our current facilities are inadequate to preserve and protect our archives and fine art collection as we move into the future
The new building will include:
-
A climate-controlled, fire-proof structure for enhanced protection of our archives and collection
-
Space for expansion
-
Enhanced facilities for researchers and the community
This is important because:
-
The full scope of Woodstock’s history resides within the archives of the Historical Society
-
The Historical Society is where history and the community come together
It’s your history. Help us preserve it.
Please join us in supporting this effort.
Donations of any amount will help us
to achieve our goals, and we are grateful.
Donate by:
Clicking the donate button below
or by check mailed to:
Historical Society of Woodstock,
PO Box 841, Woodstock, NY 12498
Donating Opportunities
Donations of $250 and above
will be recognized in the new building.
Silver level: $250-499
Gold level: $500-999
Platinum level: $1000 +
Please contact us at archives@historicalsocietyofwoodstock.org if you are interested to discuss room naming opportunities at the new building.
The Historical Society is grateful to the efforts of the community members who have donated their time and talents to help to design and plan for the new building.
Fundraising Committee
Arthur Anderson
Lewis Arlt
Weston Blelock
Rennie Cantine
Cindy Cashdollar
Vincent and Diane Christofora
Kathy Crost
Jon D. Elwyn and
Heidi Jellinghaus
James Cox and Mary Anna Goetz
Deborah Heppner
Hattie Iles
Rachel Jackson
Selma Kaplan
Jason and Karen King
Matthew Leaycraft
Susana Leval
Susan and Dick Goldman
Jeffrey Miller
Janine Mower
Will Nixon
Ed Sanders
Letitia Smith
Bruce Weber
Building Committee
Richard Heppner
Weston Blelock
Michael Drillinger
Deborah Heppner
Jeff Keithline
JoAnn Margolis
Jeffrey Miller
Janine Mower
Sue Reynolds
Bruce Weber


